新闻中心
产品展示
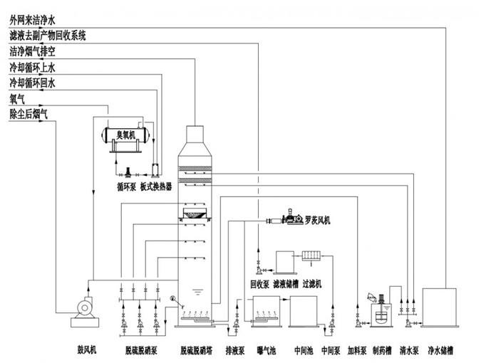
臭氧脱硝设备介绍
发布者:朗逸环保 发布时间:2019-5-23
臭氧脱硝装置设备简单,运行和维护都很便捷,投入费用要低于活性炭和SCR法。

臭氧脱硝法适用在湿法脱硫系统,利用脱硫塔作为吸收塔,脱硫液作为吸收液;氨气中的NOX经臭氧臭氧氧化后,通过吸收液吸收生成硝酸盐外排。对于干法或是半干法脱硫系统,就需要增加吸收塔,用于吸收臭氧氧化后的NO2,NO3,N2O5等气体,生成硝酸盐,可以后所投入费用及运行费用都比湿法高。
在脱硝量需求比较小的时候,臭氧脱硝工艺运行费用比活性炭和SCR法要低。臭氧脱硝工程具有仅次于氟的强氧化性,完全可以把烟气等恶劣环境中的NO氧化成高价态,并且提高烟气中氮氧化物的水溶性,从而通过湿法洗脱。
免责声明:本网站发表的部分公开资料来源于互联网,目的在于传递更多信息及用于网络分享,并不代表本站赞同其观点和对其真实性负责。

